Je viens d’obtenir le dossier du permis de construire du centre culturel.
Je le publie prochainement, avec les plans HD.
Trigger warning : il est foireux, et il ne coûte que 15,5 millions €.
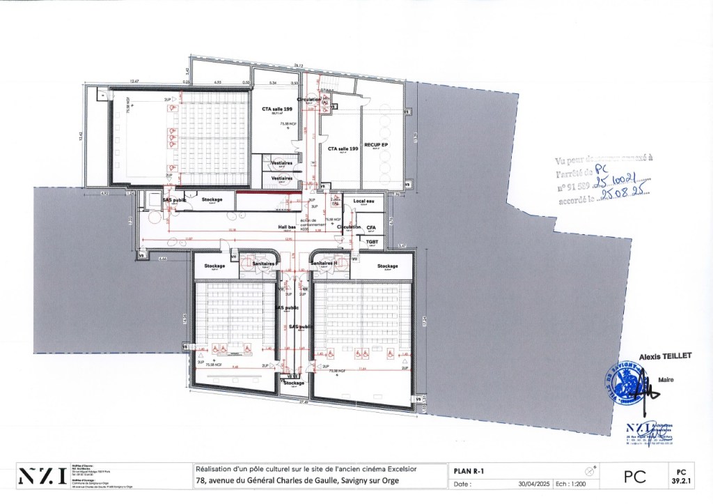
Vous vous rappelez les annonces de 3 salles pour 399 places.
Une de 199, une de 120 et une de 80.
Ces trois salles sont enterrées en niveau R-1.
Eh bien, les règlements incendies ne permettent en fait que 320 personnes en même temps…
Donc déjà l’activité cinéma ne pourra jamais fonctionner qu’à 80 % de sa capacité.
Mais de toute façon, il n’a jamais été prévu que les 399 places soient utilisées en même temps.
Rappelez-vous l’étude économique !
Qui n’existait plus au moment de la réunion de présentation du centre, car :
– elle n’a juste été produite que parce que c’est une obligation au dossier ;
– parce qu’elle est parfaitement insincère.
Il n’y aura jamais que 21 diffusions maximum par semaine (en moyenne) !
Chaque film ne sera diffusé que 5 fois (en moyenne).
Avec seulement 21 créneaux dans la semaine, je ne crois de toute façon pas qu’il y aurait pu y avoir des projections simultanés dans les trois salles.
Donc 320 pour 399, en vrai, je l’avoue, je pinaille, je fais feu de tout bois pour taper sur Alexis, c’est un faux-problème.
Tiens, par exemple.
Mais quand même cela fait mauvais genre…
Sur quoi, je serai curieux d’aller demander, la prochaine fois que je vais au cinéma ; et j’y vais la semaine prochaine pour aller bitcher sur le documentaire « Sacré-Cœur, son règne n’aura pas de fin. »),
si eux aussi, dans les grands groupes, ils ont des salles qu’ils ne peuvent pas remplir concomitamment, à cause des normes incendie… ¯\_(ツ)_/¯





Laisser un commentaire